- Lori Ann Bugliaro P.A., PA,REALTOR ®
- Tropic Shores Realty
- Helping My Clients Make the Right Move!
- Mobile: 352.585.0041
- Fax: 888.519.7102
- Mobile: 352.585.0041
- loribugliaro.realtor@gmail.com
Contact Lori Ann Bugliaro P.A.
Schedule A Showing
Request more information
- Home
- Property Search
- Search results
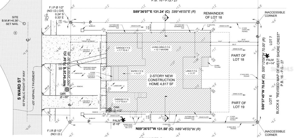
- 210 Ward Street, TAMPA, FL 33609
Active
Property Photos

- MLS#: A4670755 ( Residential )
- Street Address: 210 Ward Street
- Viewed: 182
- Price: $3,840,000
- Price sqft: $797
- Waterfront: No
- Year Built: 1960
- Bldg sqft: 4817
- Bedrooms: 6
- Total Baths: 6
- Full Baths: 5
- 1/2 Baths: 1
- Garage / Parking Spaces: 2
- Days On Market: 114
- Additional Information
- Geolocation: 27.9421 / -82.5281
- County: HILLSBOROUGH
- City: TAMPA
- Zipcode: 33609
- Subdivision: West Shore Crest
- Elementary School: Grady
- Middle School: Coleman
- High School: Plant
- Provided by: FLATFEE.COM
- Contact: Cliff Glansen
- 954-965-3990

- DMCA Notice
-
DescriptionPre Construction. To be built. A unique Modern Bermudan residence to be built in the prestigious Beach Park neighborhood. Thoughtfully designed with an elevator, rare 3 car garage, and a spacious first floor owners suite, this home combines timeless elegance with modern functionality. Enjoy open concept living areas that flow seamlessly to a large pool and private backyard, perfect for entertaining or relaxing. A rare opportunity to customize and own a home that truly has it all architectural beauty, luxury amenities, and an unbeatable South Tampa location.
Property Location and Similar Properties
All
Similar
Features
Appliances
- Microwave
- Range
- Refrigerator
Home Owners Association Fee
- 0.00
Carport Spaces
- 0.00
Close Date
- 0000-00-00
Cooling
- Central Air
Country
- US
Covered Spaces
- 0.00
Exterior Features
- Lighting
Flooring
- Tile
- Wood
Garage Spaces
- 2.00
Heating
- Central
High School
- Plant-HB
Insurance Expense
- 0.00
Interior Features
- Built-in Features
- Walk-In Closet(s)
Legal Description
- WEST SHORE CREST SLY 40 FT OF LOT 18 AND NLY 30 FT OF LOT 19 BLOCK 6
Levels
- Two
Living Area
- 4817.00
Middle School
- Coleman-HB
Area Major
- 33609 - Tampa / Palma Ceia
Net Operating Income
- 0.00
New Construction Yes / No
- Yes
Occupant Type
- Vacant
Open Parking Spaces
- 0.00
Other Expense
- 0.00
Parcel Number
- A-20-29-18-3L2-000006-00018.0
Parking Features
- Driveway
Pool Features
- In Ground
Property Condition
- Pre-Construction
Property Type
- Residential
Roof
- Shingle
School Elementary
- Grady-HB
Sewer
- Public Sewer
Tax Year
- 2024
Township
- 29
Utilities
- Electricity Connected
Views
- 182
Water Source
- Public
Year Built
- 1960
Zoning Code
- RS-75
Disclaimer: All information provided is deemed to be reliable but not guaranteed.
Listing Data ©2026 Greater Fort Lauderdale REALTORS®
Listings provided courtesy of The Hernando County Association of Realtors MLS.
Listing Data ©2026 REALTOR® Association of Citrus County
Listing Data ©2026 Royal Palm Coast Realtor® Association
The information provided by this website is for the personal, non-commercial use of consumers and may not be used for any purpose other than to identify prospective properties consumers may be interested in purchasing.Display of MLS data is usually deemed reliable but is NOT guaranteed accurate.
Datafeed Last updated on February 26, 2026 @ 12:00 am
©2006-2026 brokerIDXsites.com - https://brokerIDXsites.com
Sign Up Now for Free!X
Call Direct: Brokerage Office: Mobile: 352.585.0041
Registration Benefits:
- New Listings & Price Reduction Updates sent directly to your email
- Create Your Own Property Search saved for your return visit.
- "Like" Listings and Create a Favorites List
* NOTICE: By creating your free profile, you authorize us to send you periodic emails about new listings that match your saved searches and related real estate information.If you provide your telephone number, you are giving us permission to call you in response to this request, even if this phone number is in the State and/or National Do Not Call Registry.
Already have an account? Login to your account.
