- Lori Ann Bugliaro P.A., PA,REALTOR ®
- Tropic Shores Realty
- Helping My Clients Make the Right Move!
- Mobile: 352.585.0041
- Fax: 888.519.7102
- Mobile: 352.585.0041
- loribugliaro.realtor@gmail.com
Contact Lori Ann Bugliaro P.A.
Schedule A Showing
Request more information
- Home
- Property Search
- Search results
- 18301 Branch Road, HUDSON, FL 34667
Active
Property Photos

- MLS#: A4686503 ( Residential )
- Street Address: 18301 Branch Road
- Viewed: 1
- Price: $370,000
- Price sqft: $99
- Waterfront: No
- Year Built: 1987
- Bldg sqft: 3732
- Bedrooms: 3
- Total Baths: 2
- Full Baths: 2
- Garage / Parking Spaces: 2
- Days On Market: 3
- Additional Information
- Geolocation: 28.4233 / -82.6409
- County: PASCO
- City: HUDSON
- Zipcode: 34667
- Subdivision: None
- Provided by: JOSEPH WALTER REALTY LLC
- Contact: Scott Fader
- 248-294-7850

- DMCA Notice
-
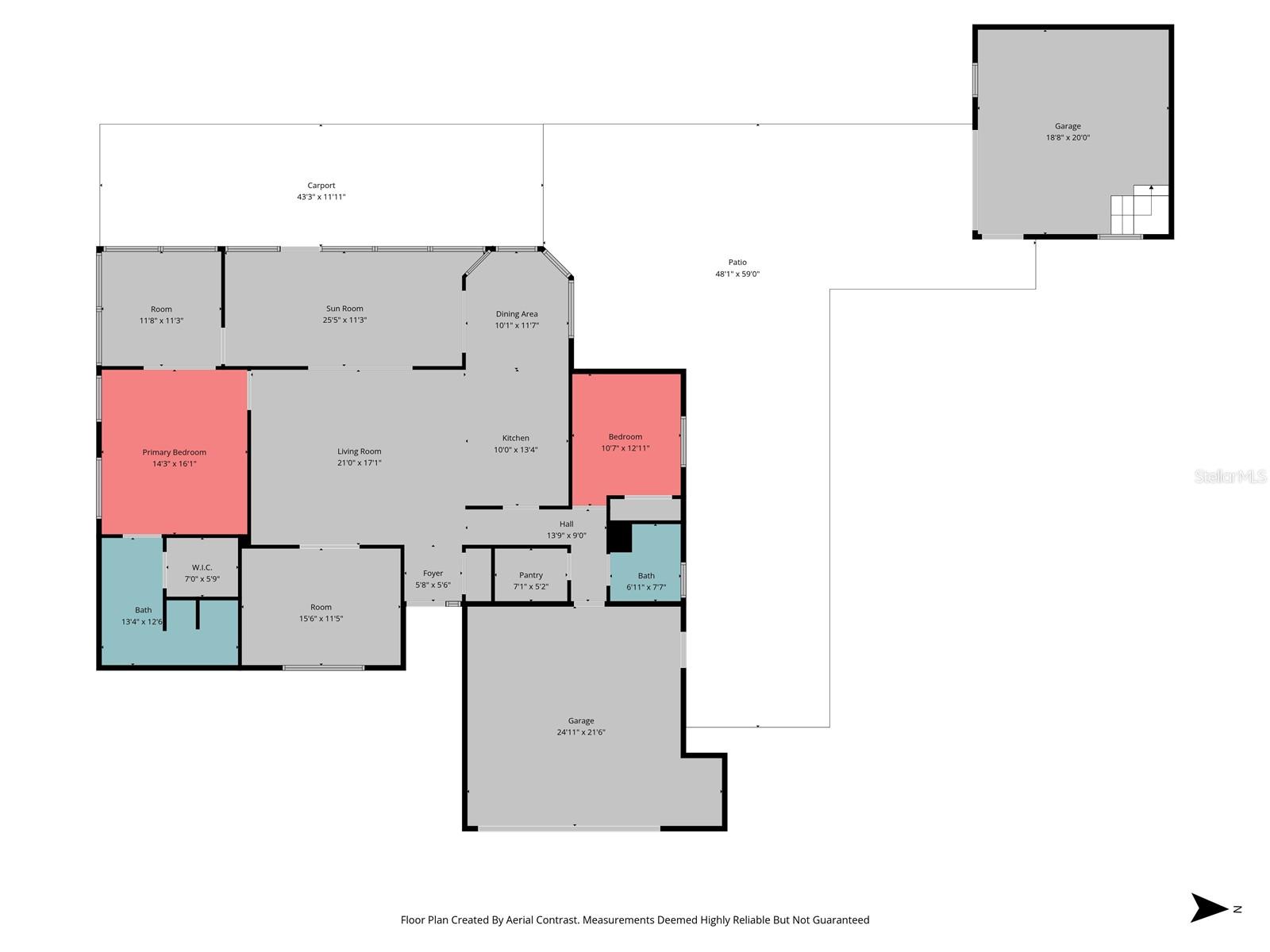
DescriptionInvestor Special on Acreage ? Priced to Move! Located in Hudson, Florida, this 3 bedroom, 2 bath property with attached 2 car garage offers 1,710 sq ft living space and over 3,700 sq ft under roof, making it a prime value add opportunity for investors or flippers. The property sits on spacious acreage and includes a rare detached two story garage/workshop, providing endless possibilities for storage, workshop space, or future conversion. The home features a massive enclosed porch plus a large open rear porch overlooking the land, creating great outdoor living potential once updated. With solid structure, large footprint, and multiple buildings, this property is ideal for fix and flip, rental investment, or long term hold. Properties with this much space and acreage rarely hit the market at this price point. Conveniently located near the Gulf Coast and just minutes from Hernando Beach and the natural beauty of Aripeka Sandhills Preserve. Property needs minor updating and is being sold as is.
Property Location and Similar Properties
All
Similar
Features
Appliances
- Convection Oven
- Dishwasher
- Range Hood
- Refrigerator
Home Owners Association Fee
- 0.00
Carport Spaces
- 0.00
Close Date
- 0000-00-00
Cooling
- Central Air
Country
- US
Covered Spaces
- 0.00
Exterior Features
- Sliding Doors
Flooring
- Carpet
- Tile
- Vinyl
Furnished
- Unfurnished
Garage Spaces
- 2.00
Heating
- Central
Insurance Expense
- 0.00
Interior Features
- Ceiling Fans(s)
- Solid Wood Cabinets
- Thermostat
- Vaulted Ceiling(s)
- Walk-In Closet(s)
Legal Description
- HIGHLANDS UNREC PLAT TR 276 COM NW COR OF SE 1/4 TH S0DEG 21'14" W 989.82 FT FOR POB TH SODEG 21'14"W 164.97 FT TH N88DEG 26'9"E 654.61 FT TH N0DEG 37'14"E 165 FT TH S88DEG 26'09"W 655.38 FT TO POB EXC RD AKA TR 276 OR 8818 PG 55
Levels
- One
Living Area
- 1710.00
Area Major
- 34667 - Hudson/Bayonet Point/Port Richey
Net Operating Income
- 0.00
Occupant Type
- Vacant
Open Parking Spaces
- 0.00
Other Expense
- 0.00
Parcel Number
- 06-24-17-0040-00000-2760
Property Type
- Residential
Roof
- Shingle
Sewer
- Septic Tank
Tax Year
- 2025
Township
- 24
Utilities
- Electricity Connected
- Water Connected
Water Source
- Well
Year Built
- 1987
Zoning Code
- AR
Disclaimer: All information provided is deemed to be reliable but not guaranteed.
Listing Data ©2026 Greater Fort Lauderdale REALTORS®
Listings provided courtesy of The Hernando County Association of Realtors MLS.
Listing Data ©2026 REALTOR® Association of Citrus County
Listing Data ©2026 Royal Palm Coast Realtor® Association
The information provided by this website is for the personal, non-commercial use of consumers and may not be used for any purpose other than to identify prospective properties consumers may be interested in purchasing.Display of MLS data is usually deemed reliable but is NOT guaranteed accurate.
Datafeed Last updated on March 21, 2026 @ 12:00 am
©2006-2026 brokerIDXsites.com - https://brokerIDXsites.com
Sign Up Now for Free!X
Call Direct: Brokerage Office: Mobile: 352.585.0041
Registration Benefits:
- New Listings & Price Reduction Updates sent directly to your email
- Create Your Own Property Search saved for your return visit.
- "Like" Listings and Create a Favorites List
* NOTICE: By creating your free profile, you authorize us to send you periodic emails about new listings that match your saved searches and related real estate information.If you provide your telephone number, you are giving us permission to call you in response to this request, even if this phone number is in the State and/or National Do Not Call Registry.
Already have an account? Login to your account.
